
新河縣榮程水利機械廠
地 址: 河北省邢臺市新河縣城北工業區
手 機: (微信號)13582492022
電 話: 0319-4989308
傳 真: 0319-4989308
郵 箱: 181727435@qq.com
網 址: m.csskx.cn

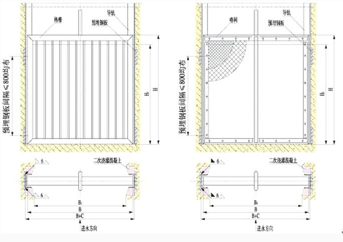
平面格柵,格網為給排水工程中取水口處的專用設備,用于攔截較大漂浮物,保護和減輕后續工藝流程的運行。
特點:
1、 構造簡單,使用壽命長。
2、 制造容易,價格便宜。
3、 規格齊全,材料任選。
主要結構:
平面格柵由框架、支撐、柵條等組成。
平面格網由框架、工作網、支承網等組成。